- Характеристики на окачения таван
- Материали, необходими за създаване на таван с леки линии
- Високи таванни лампи
- Скица на създаването на таван с лека линия
- Подготвителни въпроси
- Чертеж върху проекта на тавана
- Монтаж на окачен таван от гипсокартон с леки линии
- Фиксиращи профили за метална рамка на окачен таван
- Обшийте метална основа с листове от гипсокартон
- Направете ниша за лека линия около периметъра на тавана, създаден със собствените си ръце
- Фиксиране на LED лентата и монтиране на стъклото
- Монтаж на LED лента и таванна декорация
Когато извършвате ремонт в собствения си дом, често се свежда до тавана, тъй като това създава цялостна картина на целия интериор на апартамента. Подчертава цялостния дизайн или скрива недостатъците. Високият таван със светлинни ленти винаги прави стаята привлекателна, светла и просторна. Когато създавате „плаващ“ таван над главата си, трябва да се запознаете с техниката на монтаж, както и да изберете подсветката, която създава „плаващ ефект“.
Характеристики на окачения таван
В плаващия таван с линии Има един важен фактор - изборът на правилното фоново осветление. Това е правилната инсталация на основата на рамката, както и осветлението, което прави тавана красив и чист.

Възпроизвеждането на плаващите линии на тавана не изисква големи инвестиции. Създава се на ръка, трябва да сте внимателни и точни в изчисленията.

Има 3 вида окачени тавани:
- едно ниво - върху основа е монтирана ниша за осветление. Светодиодната лента за тавана е монтирана около периметъра на самолета.

Таван на едно ниво с осветление около периметъра - дуплекс - първото ниво е зашито с гипсокартон. На това ниво се създава кутия за скрито осветление.

Окачен таван от гипсокартон на две нива - многостепенно - третото и четвъртото ниво са криволинейни структури, както и кръгове, квадрати.

Многоетажен таван от гипсокартон
Особености на тавана с тънки линии:
- Визуално увеличава стаята;
- Ако желаете, ъглите на повърхността са заоблени;
- Просто и бързо производство.
- Цената на материалите е сравнително ниска.
- LED ленти се монтират на таван лесно и бързо.

Недостатъците са намаляването на височината на стаята, както и абсурдността на този таван в малка стая. Варианти на плаващи линии на тавана можете да видите на приложената снимка.


Материали, необходими за създаване на таван с леки линии
- 9,5 мм таван от гипсокартон.
- Профили: PNP, PP, алуминий за LED лента.
- Окачвания за фиксиране на профила на тавана.
- Дюбел-пирони и анкерни клинове 6*40,6*60.
- Винтове за закрепване на профили, окачвания 11 мм, за гипсокартон 3,5 * 25 мм.
- Електрически проводници за окабеляване.
- За светлинна лента на тавана: LED лента, плексиглас, пластмасови ъгли (най-малките).
- PVA лепило.
- Стартерни смеси.
- Шпакловъчни материали за укрепване на шевове, сърповидна лента.
- Довършителна шпакловка.


Материалите се закупуват в размер на 10% повече.
Високи таванни лампи
За да създадете ефекта на "висене" със светлинна лента на тавана, трябва да изберете правилните тела. Използват се луминесцентни лампи, монтирани в скрито осветление. По-добре да се използва led лента, чийто избор е голям като цветове и брой диоди на 1 м².


Сега дизайнерите предлагат готови решения, използват кутии за LED ленти, покрити с плексиглас.Това се прави просто. За да инсталирате LED ленти на тавана, има 2 метода: домашни рисунки и използване на готови промивни кутии.

В центъра на тавана обикновено се окачва полилей като основно осветление. Само при таван на едно ниво полилеят не трябва да е обемист. Големи красиви полилеи висят във високи стаи с многостепенни конструкции. Но основно, когато създавате "естакада", няма осветителни тела в центъра на стаята.
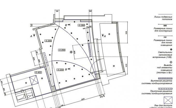
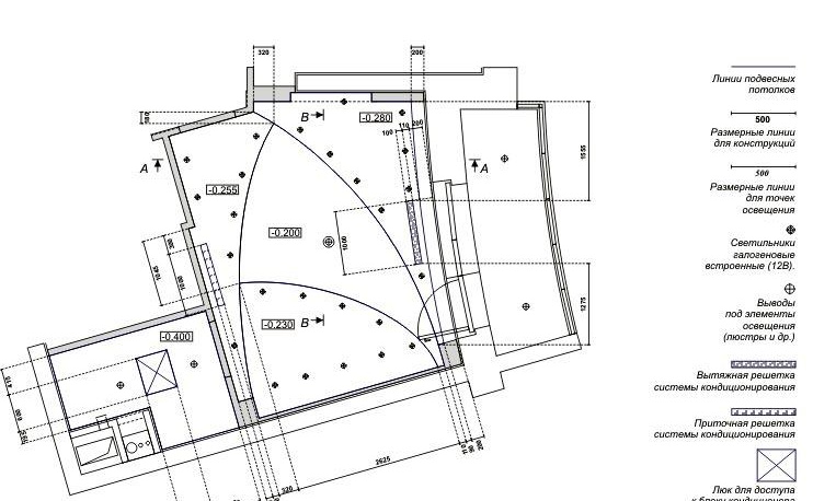
Скица на създаването на таван с лека линия
Първото нещо, което трябва да направите, е да начертаете скица на тавана. Трябва да знаете точно колко нива ще има, какъв тип подсветка ще се използва? Избирайки светлинни ленти на тавана, получавате едно или 2 нива. Ако е предвидено второ ниво, то ще бъде с порядък по-малък от първия, например квадрат, плаващ в центъра.
За таван на едно ниво се изчертава на хартия скица на структурна стомана. Но с ниша за осветление. На създадения чертеж са маркирани всички размери, точки на пресичане на профили, както и крепежни елементи. Без провал се изтеглят листове от гипсокартон. Фугите на листовете са от голямо значение, тъй като на това място трябва да има напречна греда от профила.Всички размери са дадени в мерна единица - милиметри.

внимание. Като посочите единицата - сантиметри, можете да се изгубите в изчисленията, което заплашва с неправилна инсталация на металната рамка.
Отделно се изготвя план за електрическо окабеляване. Изходните места на проводниците за свързване на LED лента, гнезда, превключватели са посочени предварително. Той също така показва връзката на окабеляването към съединителната кутия.

Подготвителни въпроси
Работата, извършена преди монтажа на металната рамка, ще покаже здравината на цялата конструкция. Подготвителната работа включва следните процеси:
- Стаята, в която се създава плаващ таван с леки линии от гипсокартон, се освобождава от предмети, които пречат на работата (мебели, завеси, полилеи).
- Ако се открият пукнатини, е необходимо укрепване и шпакловка.
- Покрива се цялата повърхност на тавана буквар.

Незапечатаните пукнатини в тавана в бъдеще могат да повлияят неблагоприятно на конструкцията от гипсокартон. Ако таванът не е покрит с грунд и къщата (апартаментът на последния етаж) е студена, ще се появят гъбички, което също ще се отрази негативно на окачената конструкция от гипсокартон.
Чертеж върху проекта на тавана
За урок по чертане на линии за метални профили ще ви трябват инструменти:
- Лазерен нивелир. Необходима е и редовна сграда, но ще бъде трудно да се изградят прави линии на тавана.
- Пастел или цветна креда. Е, ако има въже за рязане. С него е по-лесно да оставите прави линии за рамката в равнината на стените и тавана.
- Метър или ролетка.

Първоначално в стаята трябва да измерите височината на всички ъгли. Когато се намери най-ниската точка, се прави маркировка. Минимум 8 см се отдръпват от черния таван. В същия ъгъл на тавана същата точка е отбелязана с отстъп от 8 см, какво означава това? В тези точки се изчертават линии през цялата стая по периметъра. Създава се маркировка за ниша за плаващи линии. Колкото по-широка е нишата, толкова по-широка е линията. Тук влиза правилото - размерът на стаята. В малка квадратна стая на тавана широки светлинни ленти без текущи интереси.

На тавана със стъпка от 60 см се изчертават ленти за профила на тавана. На тези ленти са фиксирани точки за закрепване на окачването - на всеки 50 см. Перпендикулярно на линиите на тавана са маркирани точките на закрепване на напречните греди за закрепване на гипсокартон. Те имат еднаква стъпка - 60 см. Трябва да получите 60x60 клетки.
Оформлението на тавана от гипсокартон е готово.
Монтаж на окачен таван от гипсокартон с леки линии
Създаването на плаващ таван с леки линии изисква внимание, време за проверка на правилността на работата. Всички работи са разделени на етапи от формирането на таванната конструкция. Първият е производството на метална рамка. Неговите характеристики: правилният избор на крепежни елементи, проверка на точността на създадената равнина, здравина, твърдост.

Втората стъпка е обшивка от гипсокартон. Тук има правила, чието пропускане ще доведе до ранна деформация и пукнатини в тавана. Третата стъпка е инсталирането на плаващи линии в тавана. Ефектът на плаващия таван зависи от правилното осветление, както и от точността на монтажа му.

Четвъртата стъпка е укрепване на ставите, грунд, пълнител. На този етап основното е качеството на материала и коректността на извършената работа.

Последната стъпка, която завършва целия процес, е завършването на тавана. Може да бъде боядисване, залепване с обикновен тапет, декоративна облицовка.

Фиксиращи профили за метална рамка на окачен таван
Метален каркас е основата на възходящия поток. Правилността на изпълнението му се отразява върху целия таван с LED ленти. При създаването на рамкова основа се вземат предвид фактори като свиване на нова сграда, възраст на къщата (особено стари частни къщи), процент на влажност, температурни условия. Ако в топъл апартамент е създаден плаващ таван с LED лента и сградата е стабилна, тогава напречните елементи на рамката се монтират само в ставите на гипсокартона. Но ако сградата е нестабилна и подложена на много външни фактори, тогава основата на рамката трябва да е здрава и солидна. За укрепване напречните се монтират с определена стъпка.
И така, създаването на метална щайга започва с инсталирането на направляващи профили. Обозначения: PNP - направляващ профил на тавана или UD - европейска маркировка.

Каналът на тавана се закрепва с дюбел пирони 6/40 към тавана по крайна линия. Стъпката на закрепване е както следва: отстъпете от ръба на 15 см. След всеки 25 см последният дюбел също се фиксира от ръба на профила на 15 см. PNP се фиксира по протежение на целия четириъгълник на тавана.
След това ще ви трябват нарязани парчета от PP (известен още като CD) профил на тавана.Дължината на такъв сегмент е равна на разстоянието на линията, изчертана от тавана по стената (100 mm). Стелажите са закрепени с малки самонарезни винтове към водещия профил на тавана. Стъпката на стелажите е 30 см, те създават твърдостта и здравината на конструкцията.
Друг направляващ профил е прикрепен към стелажите, в които ще бъдат поставени таванните профили. Директните окачвания се закрепват към анкерните ъгли по целия таван в маркираните точки. Крепежните елементи се вкарват в "ушите" на окачванията и се забиват. За да се поддържа равномерност и да се образува една равнина, върху цялата повърхност се изтегля нишка. Фокусирайки се върху тази нишка, както и с помощта на ниво, таванните профили се вкарват в водачите и се закрепват към окачванията.


Джъмперите са създадени от PP. Те са прикрепени към профила на тавана с раци. За твърдост раците се фиксират не само с крепежни елементи, но и с самонарезни винтове.

Накрая цялата метална кутия се проверява за нейната твърдост, устойчивост и правилност. Това е важен момент, тъй като неравна и крехка рамка няма да създаде плаваща структура.

внимание. Проводими проводници между метални профили се срещат само в гофрирана втулка, в противен случай, когато жив проводник влезе в контакт с метал, възниква късо съединение. На мястото, където осветителното устройство е свързано към електрическата инсталация, кабелните нишки са поставени на 20 cm и изолирани.
Обшийте метална основа с листове от гипсокартон
Първо, височината на таванната конструкция трябва да бъде изрязана от гипсокартона. Тези сегменти са прикрепени към външната страна на металния корпус.За това са приложими самонарезни винтове с размер 3,5 * 25 mm.

След фиксиране на вертикалните сегменти на GKL, целият таван е покрит с гипсокартон. Тук трябва да прочетете правилата:
- Гипсокартонът е фиксиран само върху профила. Не трябва да има провиснали ъгли.
- Закрепването на самонарезния винт се извършва на стъпки от 15 cm и от ръба на листа с 1 cm.
- Фугите на плочата от гипсокартон не трябва да съвпадат хоризонтално. Шахматният ред на кожата създава здравината на цялата конструкция.
- Главата на самонарезния винт не трябва да стърчи над повърхността, но винтът също не трябва да се завинтва твърде дълбоко, тъй като това ще повреди повърхността на листа.
Когато облицовате метална щайга с гипсокартон, трябва отново да проверите повърхността с нивелир. На кръстовището на листовете GK не трябва да има капки.
Направете ниша за лека линия около периметъра на тавана, създаден със собствените си ръце
Дотолкова доколкото таван на едно ниво, се получава ниша от грубата основа на тавана и стената. Таванните LED ленти се създават по този метод без носещ профил, който е специално проектиран за това осветление. Ще ви е необходим профил за LED лентата, пластмасови ъгли с минимален размер, плексиглас.

За да изравните повърхността на нишата, покрийте цялата вътрешност с грундираща смес и след изсъхване нанесете равномерен слой шпакловка и оставете да изсъхне. Сухата повърхност се обработва с шкурка.
Според майсторите в нишата трябва да се постави изолационен материал. Може да бъде фолио или друг листов материал. Закрепва се с PVA. Това е създадено, за да отразява светлината и да изолира.
Център ниши, към тавана е закрепен профил за LED лентата. Тъй като лентата се нагрява, профилът, според експертите, не трябва да се фиксира в самия край на нишата. Остават 3-5 мм. Изборът на LED лента е индивидуален. Има много видове диодни ленти: различен брой диоди на метър, цвят, производител.

Фиксиране на LED лентата и монтиране на стъклото
При таван с плаващи линии LED лентата е свързана към димер, за да работи правилно. Това трябва да се вземе предвид при подготовката за монтиране на лентата. Светодиодите са поставени върху специално платно с лепкав слой на гърба. Този слой трябва да закрепи лентата към профила. За да свържете димер, контролер, както и да свържете лента, трябва да се запознаете с правилата за инсталиране и работа.

След свързване на осветителния елемент се включва мрежовото напрежение и се проверява правилността на монтажа.
Следващата стъпка е фиксирането на плексигласа. За да направите това, трябва да действате според плана:
- Купува се пластмасов ъгъл с минимален размер 20x10, лепило, малки самонарезни винтове с вдлъбната глава.
- Страничните части се изрязват от ъгъла, за да се получат ивици. Тези пластмасови ленти са прикрепени към вътрешната страна на нишата, така че краищата да съвпадат с външните ъгли. За сигурно фиксиране се използват дистанционни елементи.
- Обърнатите навътре пластмасови ъгли са закрепени към залепените ленти с помощта на самонарезни винтове. Капачките на самонарезните винтове са „удавени“ - след пробиване на дупка със самонарезен винт трябва да се направят 2-3 завъртания на това място с празна бухалка. Вземете вдлъбнатина за шапката. Готови са рафтовете, на които ще се държи плексигласа.

Възможен вариант за монтаж на таванна ниша върху PVC ъгли. По-късно в отвора се вкарва матиран плексиглас.
Конструкцията е сгъваема. При необходимост от ремонт или поставяне на допълнително осветление на светлинни ленти, едната страна се повдига, стъклото тръгва и се завинтва обратно.

Останалите празнини отдолу на кръстовището на пластмаса и гипсокартон са запечатани с уплътнител или акрилен уплътнител.
Монтаж на LED лента и таванна декорация
LED лентата е залепена към профила, монтиран в нишата. След това се свързва към окабеляването, димер, съгласно схемата за инсталиране на лентата.
внимание. Не залепвайте лентата чак до края на нишата. При нагряване се разширява. В краищата на нишата се оставя разстояние от поне 5 мм.
Когато LED лентата е инсталирана, трябва да се провери дали е правилно свързана. За това се използва превключвател, както и контролен панел.
Цялата повърхност на тавана от гипсокартон е покрита с грунд. В фугите на GKL грундовата смес се нанася с четка. Всички шевове са покрити с армирана лента и уплътнител Knauf Fugen. Същата смес затваря всички приставки.
Освен това таванът е завършен според планирания дизайн - боядисване, лепене на тапети, декоративни покрития.
Лентите за таванно осветление са дизайнерска идея за необичайно осветление на тавана, което прави цялата стая да изглежда ярка, спретната и необичайна.











