Много жилищни помещения нямат достатъчно място за инсталиране на люлеещи се врати. Плъзгаща се конструкция може да дойде на помощ, но не винаги е удобно, когато се отваря по стената. Плъзгащи се интериорни врати, скрити в стената, ще може едновременно да реши проблема с липсата на пространство и недостатъчната естетика на помещението.
Възможно ли е сами да направите калъф за молив?
Направи интериорна врата невидим, когато е отворен, може да бъде скрит в стената. Има два начина за решаване на този проблем:
- Първият е доста радикален и изисква специално разрешение, когато става въпрос за носещи конструкции. През стената минава специална празнина за крилото на вратата. Този процес е доста неудобен, може да бъде улеснен, като се направи допълнителна стена, но тогава ще заеме място в коридора.
- По-лесен начин е калъф за молив за плъзгащи се врати, със собствените си ръце, за да създадете което е съвсем просто. Това компактно решение е подходящо за всяка стая, не изисква големи материални или физически разходи и изглежда доста естетически.

Предимства на моливника
моливник за плъзгаща се врата изпълнява няколко важни функции:
- Подобрява естетиката на пространството, като скрива отвореното крило.
- Предпазва крилото на вратата от механични влияния. Това е особено вярно, ако планирате да поставите стъклени врати и бронираните стъкла не са достъпни.
- Отворена врата се плъзга по стената, така че не можете да поставите нищо върху нея. Калъфът за молив ще заема малко пространство, но можете да преместите близките мебели, да окачите рафтове, картини, саксии директно върху него.

Методи за изработване на врати, които се забиват в стената
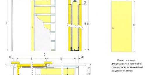
Скрити плъзгащи интериорни врати Можете да го направите сами. Този процес е креативен и не е твърде сложен. За да създадете дизайн, ще трябва да закупите аксесоари за мебели, части за калъф за молив и аксесоари за врата. Калъфът за молив е продължение на стената, вътре в която ще се скрие вратата.
Важен елемент са специалните фитинги за плъзгаща се врата: ще ви е необходима специално създадена за такъв проект касета и водачи за крилото на вратата. За да се задвижи платното, се използват ролки, релси, които могат да бъдат разположени както в горната, така и в долната част на конструкцията, или и в двете. Не забравяйте за ограничителя - запушалката.
Най-често, за да се създаде ниша за платното, част от основната стена се унищожава и след това се възстановява с помощта на гипсокартон. Факт е, че плъзгащите се интериорни врати, чиято обвивка е направена по този начин, могат напълно да изчезнат при отваряне и облицовката няма да излиза извън основната стена, тоест нейното присъствие няма да бъде визуално забележимо.
Следващият важен етап от работата е инсталирането на водачи. Те трябва да бъдат разположени строго хоризонтално, в противен случай вратата ще бъде трудно да се отвори или ще се деформира и ще бъде изключително трудно да се отвори такава конструкция.
Интериорни врати приплъзване в стената трябва да бъдат оборудвани със специални дръжки. За да направите това, в платното се правят специални вдлъбнатини.Невъзможно е да окачите стандартна дръжка на такава врата, в противен случай тя ще попречи на отварянето на вратата и няма да позволи на платното да се скрие напълно в кутията.

Начини за монтаж на интериорни врати
Преди да започнете инсталирането на касетата, трябва да се уверите, че заземената повърхност е идеално равна. Същото правило важи и за тавана. Проверява се и вертикалността на стените: ако повърхностите са неравни, платното може да виси върху тях, когато е отворено.
Преди да затворите кутията с гипсокартон, е необходимо да монтирате крилото на вратата и механизмите за отварянето му. Ако това не бъде направено на този етап, ще бъде невъзможно да се доведе работата до логичния й край.
Монтирането на калъфа за молив се извършва с помощта на ипотеки; те са фиксирани предварително. Трябват по-високи ипотеки, за да не мърда платното. Те го държат здраво в дадена посока, не му позволяват да се огъва. Освен това ще трябва да инсталирате затваряща кутия: това е необходимо за правилното фиксиране на платното.

Вградените плъзгащи се интериорни врати ще работят правилно само ако определите правилната позиция на платното, преди да шиете стената с гипсокартон. Можете да го накарате да не влезе напълно в стената, тогава ще бъде удобно да го издърпате за дръжката.

Много собственици искат напълно да скрият вратата, като в този случай тя ще се скрие в стената заедно с дръжката. Във втория случай, за да премахнете вратата, трябва да използвате ключалка с бутон, при натискане ще работи пружина, която избутва платното от гнездото.
Трябва правилно да прецените размера на молива.Блокът трябва да е малко по-голям от крилото на вратата, ако искате да се побере напълно вътре.
Предимства на скритите врати
Плъзгащите се врати, затворената кутия имат следните предимства:
- Пространството в стаята се спестява максимално.
- Можете да прикрепите мебели към стената или да окачите картини върху нея, без да се страхувате, че крилото на вратата ще ги докосне, когато е отворено.
- Скритата в комплекта врата ще бъде защитена от повреда, рискът от нараняване на конструкцията ще намалее, тъй като основната й част ще бъде скрита вътре.
- При използване на висококачествени фитинги експлоатационният живот на конструкцията като цяло се увеличава значително.
- Плъзгаща се врата, чийто комплект е направен самостоятелно, струва на собственика минимална сума.
Недостатъци в дизайна:
- Конструкцията на моливника все още ще бъде по-скъпа от инсталирането на класическа плъзгаща се врата.
- Монтажът изисква много усилия в сравнение с монтажа на обикновена плъзгаща се врата.
Стенна плъзгаща се врата – Това е оригинално естетическо решение за всеки интериор. Това ще помогне да се увеличи пространството, да се направи отворената врата невидима, да се използва цялото налично пространство в стаята възможно най-изгодно.











