Кухнята е единственото място, където човек прекарва по-голямата част от живота си. Така че защо да не го направите с максимален комфорт и удобство. Но не трябва да бягате в скъпи магазини за мебели и да поръчате кухненски комплект. Разбира се, за някои компоненти, като фасадни елементи, пързалки, завеси и други фитинги, все още трябва да отидете до магазина. Но ако вземете предвид, че всичко това може да бъде закупено в складове на едро, където цените за всичко са много по-ниски, отколкото в мебелен магазин, тогава можете да спестите много. Висококачествените кухненски мебели "направи си сам" ще станат предмет на вашата гордост и морално самодоволство. Освен това ще придобиете безценен опит по този въпрос, който може да ви бъде полезен повече от веднъж в живота ви.
Много хора казват: "Това е скъпо, така че кухненски мебели Направи си сам!"
Но не е толкова лесно, но все пак е възможно. И тази мисъл посещава всеки човек, който има поне малко въображение при следващото си пътуване до мебелния панаир. Освен това повечето кухненски комплекти, предлагани от салоните, не са достатъчно сложни в дизайна си, но крайната им цена за клиента се оказва няколко пъти по-висока от първоначалната. И няма какво да направите по въпроса и ще трябва да заплатите посочената сума. Но ако кухненските мебели са направени на ръка, тогава много проблеми напълно изчезват.Но трябва самостоятелно да направите изчисления за бъдещи мебели, да разработите монтажни схеми, да обмислите всички недостатъци и декоративни покрития и много други. Ако правите това за първи път, тогава трябва да направите всичко възможно, за да не развалите детайлите, но в крайна сметка ще получите желания резултат. Това ще бъде малко ръководство за вас. Тук ще разгледаме един от многото примери за създаване на кухненски комплект с всички необходими атрибути. И ако се съмнявате в способностите си, лесно можете да намерите фирма, която ще ви помогне да смените кухненските фасади.
Първо нещо
Първо, трябва да вземете решение за финансовото си състояние, след това да решите дали имате достатъчно пари, за да създадете нова кухня или можете да поправите старата с добавяне на модерен декор. В крайна сметка за тази разпродажба можете да купите почти всичко:
- фасадни елементи;
- ламинирани панели;
- нови красиви дръжки и брави;
- завеси и шейни.
Такъв ремонт на кухненски мебели със собствените си ръце ще струва много по-малко от закупуването или създаването на нов. И внимавайте, след като смените всичко по-горе, вашата кухня ще се промени към по-добро. Но ако имате средства, но в умерени количества, най-добрият вариант ще бъде пълното производство на кухненски мебели със собствените си ръце. За да направите това, трябва да изберете подходящата опция, да разработите предварителна скица и може би дори да направите модел.
В интернет, включително на този сайт, можете да намерите много готови чертежи и опции за създаване на кухненски комплекти. Но не забравяйте, че общите размери на вашите помещения и някои технически условия (водопровод, електрически контакти и т.н.) могат да се различават и все пак трябва да направите промени в проекта.За да направите това, не е необходимо да имате инженерна подготовка, просто седнете и си представете себе си или, в краен случай, попитайте приятел, който познава материята.
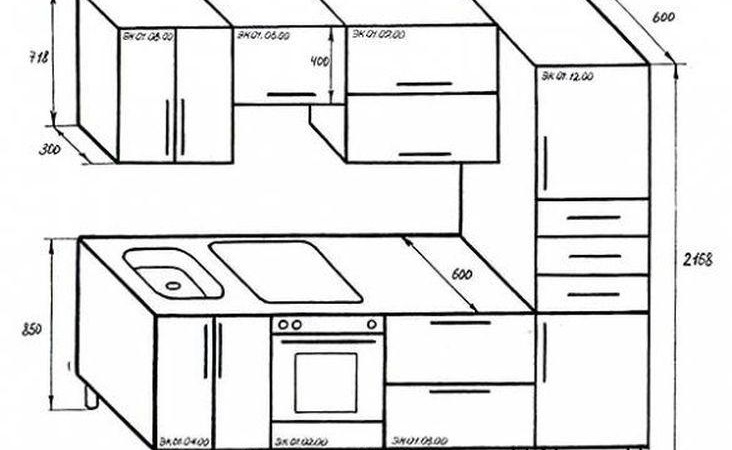
Разработване на проект и предварителни изчисления
Тъй като кухнята е не само основно работно пространство, но и място за почивка, тя трябва да бъде направена възможно най-функционална, висококачествена и хармонизирана и съчетана с интериора на стаята. В крайна сметка кухнята обикновено вече е създадена за готовия интериор: плочки, тапети, декорация на тавана и др. Следователно изборът на цвят зависи от този интериор. Ако създавате висококачествени и издръжливи кухненски мебели със собствените си ръце, чертежите трябва да се използват готови или да се използва подходяща програма за проектирането им. За щастие има много от тях в интернет.
Например Woode, Business Furniture Designer, K2-Furniture, eXponentFurnitureDesigner, bCAD-Furniture Maker, KitchebDraw, Astra-D. Тези програми ви позволяват сами да създадете не само ексклузивен дизайн на кухня в 3D графика, но и да изчислите рационално изрязването на лист от ПДЧ с най-малко отпадъци. В допълнение, този софтуер ви позволява да не мислите за недостатъци, тъй като в настройките всичко е обмислено от разработчиците до най-малкия детайл. Но точно отклоненията могат да доведат до много големи промени по време на монтажа, което ще доведе до промяна в проекта и увеличаване на времето и материалните разходи. Направи си сам изчисляването на кухненските мебели с помощта на такива програми е много по-лесно поради многото налични параметри, които са стандарти.
Възможни нюанси
За да не ви изненада сглобяването на кухненски мебели със собствените си ръце, трябва да вземете предвид дебелината на използваните ръбове.Например, когато се използва хартиен кант, празнината може да се остави по-голяма, отколкото при използване на PVC. Това се дължи най-вече на дебелината му, която е няколко пъти по-малка. Освен това е задължително да се вземе предвид разстоянието за свободно движение на движещите се части и пространството за монтаж на плъзгащи водачи, затварящи устройства и амортисьори.
Когато създавате мебели със собствените си ръце, чертежите трябва да бъдат възможно най-точни и да съдържат обяснения. Това ще улесни не само по-нататъшния производствен процес, но и монтажа.
Следващият нюанс при създаването на кухня са самите аксесоари. Първо трябва да разработите проект и да изберете всички необходими компоненти за него. В крайна сметка се случва нещо да не е в магазините, тогава трябва да направите глобални промени в дизайна. Освен това е необходимо да изберете правилните фитинги според параметрите. Например, краката, те могат да бъдат направени, очаквайки различни натоварвания. Но такива мебели, както и кухненски прибори вътре, ще бъдат доста тежки, което може да доведе до счупване на придобитите крака.
Следователно всички фитинги трябва да бъдат закупени с голям марж на надеждност. Това може да се определи от дебелината на използвания метал, колкото по-дебел е, толкова по-надежден е продуктът. Независимо от това, хромираните и позлатените части могат първо да бъдат лакирани с безцветен лак, тъй като покритието на тези елементи, дори независимо от производителя, се износва доста бързо. Изключение правят матовите продукти, но те са по-скъпи.

За да направите кухненски мебели със собствените си ръце с високо качество и за дълго време, трябва да използвате надеждни водачи, плъзгачи и панти.В търговската мрежа се предлагат шейни с ролки и топки. Първият тип е по-прост и по-евтин механизъм, който освен това няма да позволи пълното изваждане на чекмеджето с чинии, а само с 2/3. И понякога е много неудобно. Освен това трайността на тези водачи би трябвало да бъде много по-дълга. Вторият вид, сачмен лагер, е комплект, изграден изцяло от подвижни метални компоненти, които макар и по-скъпи, но тяхната товароносимост и издръжливост са неизмерими дори многократно над тези с ролки. При редовно смазване тези фитинги ще издържат вечно.
Изисква се инструмент
Независимо дали ще възстановите кухненските мебели със собствените си ръце или ще създадете нови, определено ще ви трябват специални инструменти. Те включват:
- бормашина с комплект свредла или отвертка;
- марка;
- резачки за дърво за рязане на 35 mm бримки;
- циркуляр и прободен трион;
- набор от шестнадесетични ключове;
- отвертка;
- молив, линийка, клин и др.
В допълнение към основния инструмент, посочен в списъка, има възможност за закупуване на всички видове държачи и универсални устройства за челно пробиване и др. Всичко това ще стане безспорен помощник в тази трудна задача. И въпросът как сами да направите кухненски мебели на модерно ниво ще получите отговор за вас. С прецизно измерени разстояния и правилно пробити или скрити жлебове и отвори, сглобяването на мебели със собствените си ръце няма да създаде проблеми в кухнята. Днес в продажба има всичко, за което можете да се сетите за производството на висококачествени и издръжливи мебели.
Избор на материали
От какво са направени кухненските шкафове? Един от най-разпространените материали за мебелно производство е ПДЧ, МДФ и фазер.Дъската се използва по-рядко за производството на кухни поради високата цена и сложността на по-нататъшната обработка. Но ако е предназначен за селска къща или баня, тогава е напълно възможно да се използва масивна дървесина с последващото й лакиране.
ПДЧ
За дизайна на корпусни мебели се използва ПДЧ с дебелина най-малко 18 мм, кутии и някои маловажни елементи могат да бъдат направени от 10 или 8 мм. Но на практика най-често се използва 18 мм форм фактор. Тази дебелина ви позволява сигурно да закрепите вратите и стените и няма пукнатина в края.
Също така важен фактор при избора на материал е производителят на материала на панела. Качеството на плочата може да се определи от броя на кухините в крайната й част и, разбира се, от нейното тегло. Висококачественият материал е по-плътен и по-тежък. Мнозина предпочитат ПДЧ от чуждестранно производство.
MDF
Така че, когато правим кухненски мебели със собствените си ръце, ние сме изправени пред задачата да направим най-издръжливата рамка с ниско тегло. Следващият материал, който също се използва активно за производството на мебели, е MDF. Гъвкавите свойства на този материал позволяват производството на полукръгли врати и други профилирани продукти. Но това изисква хардуер.
фибран
Фазер е лист от фазер, използван за направата на прегради и задни стени. От една страна е ламиниран и може да бъде в различни цветове.
Външен вид
Декупажът на кухненски мебели „направи си сам“ ви позволява да създадете нещо ултрамодерно и модерно дори от класически комплект.Като него могат да се използват хартиени снимки, снимки на плодове върху филм, които просто се залепват на врати и стени. Декорирането на кухненски мебели със собствените си ръце, дори без специални промени в дизайна, ви позволява да създадете невероятни промени със стария комплект. Всички скучни витражи могат да бъдат запечатани с красиви изображения на летни пейзажи.
технология на рязане
- Почистете цялата повърхност от грапавини и повредени петна могат да бъдат покрити с шпакловка за дърво и внимателно обработени.
- Нарежете хартията за декупаж на необходимите парчета, пропорционални на повърхността за залепване с резерв за ъглите и краищата.
- Нанесете слой PVA лепило или друго лепило, предназначено за декорация.
- Залепете равномерно подготвеното платно и внимателно го изгладете.
- След като лепилото изсъхне напълно, цялата получена креативност трябва да бъде покрита с няколко слоя лак.
Съоръжение
Кухненският комплект е проектиран за специфични условия на разположение със свои специфични нюанси. Например изрези за водопроводни и отоплителни тръби, вентилационен канал, водоснабдяване и канализация. Следователно инсталирането на кухненски мебели сами не трябва да създава проблеми, но като правило понякога възникват някои трудности, които в повечето случаи лесно се решават.
Монтажът на кухненските мебели се извършва на ниво и изисква определена прецизност. Всички секции на комплекта трябва да прилягат плътно една към друга, а също така се закрепват заедно със скоби или винтове.Горните шкафове се окачват с анкери и се нивелират с нивелир.
Задължително е още на етапа на проектиране на кухнята да се обмисли местоположението на електрическите контакти за свързване на домакински уреди: аспиратори, котлони, чопър и др.
Затова не се страхувайте да експериментирате с материали и цветове, във всеки случай ще получите уникален дизайн. Дизайнерските кухненски мебели, представени на тази страница, ще ви помогнат да разберете някои от нюансите, които най-често възникват при сглобяването на комплект. Ако се съмнявате в способностите си, свържете се с помощта на професионалисти, способни да ремонтират кухненски фасади.












